
時代的發展,無不以技術創新為驅動,隨著科技的進步和近視問題的日益嚴峻,教室照明正逐漸走進大眾視野,被大家關注及重視。
據權威機構調查結果顯示,我國中小學生每天約60%的時間是在教室里度過的。如果學校教室照明沒有達到標準很容易傷害師生的眼睛,影響大家的視力健康。也就是說當教室采光和照明條件不足、光線過暗,學生就會本能地靠近書本,久而久之,自然會使眼睛屈光系統產生變化,導致近視發生。
所以學校教室照明非常重要,大家知道學校教室照明應該怎么設計?應該選擇怎樣的照明燈具嗎?

一、健康的教室照明環境設計
標準教室設計原則:教室照明應以視覺健康舒適作為考慮的要點提高學習效率的同時,減少視覺疲勞,有利于維護師生健康燈具布置。

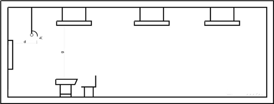
教室燈安裝
采用吊桿安裝方式,并按教室縱向(燈具長軸垂直于黑板)均勻布設,教室照明功率密度不應高于11w/㎡,有條件的地區宜低于9w/㎡ ,燈具距課桌垂直距離(g)不應低于1700mm。
直發光LED護眼教室燈1200x300x130mm36w
直發光LED護眼教室燈1200x300x130mm36w
LED黑板燈1230x128x56mm36w
直發光LED護眼教室燈1200x300x130mm36w